Stambeno zbrinjavanje kadra dubrovačke bolnice na Pobrežju
Gradonačelnik Mato Franković održao je sastanak s predsjednikom dubrovačke podružnice Hrvatskog strukovnog sindikata medicinskih sestara – medicinskih tehničara Ivanom Večinarom i Kristinom Muhoberac, glavnom sestrom Opće bolnice Dubrovnik i pomoćnicom ravnatelja za sestrinstvo, na temu stambenog zbrinjavanja kadra dubrovačke bolnice. Na sastanku se razgovaralo o detaljima realizacije projekta te je dogovoreno kako će Grad za potrebu stambenog zbrinjavanja medicinskog osoblja dodijeliti zemiljšte na Pobrežju za izgradnju stambenih objekata te ih potpuno komunalno opremiti. Grad će također financirati izradu projektne dokumentacije, a već početkom 2021. godine pokrenut će ciljane izmjene Prostornog plana kako bi se na navedenom području omogućila gradnja. Predstavnici strukovnog sindikata medicinskih sestara i tehničara te osoblja bolnice izvijestili su gradonačelnika o pokretanju ankete među zaposlenicima dubrovačke bolnice za sudjelovanjem u projektu stanogradnje koja je pokazala značajan interes. Naime, oko 180 zaposlenika bolnice ispunilo je anketni upitnik, a u ukupnom broju zainteresiranih prevladavaju mladi liječnici specijalizanti te drugi medicinski kadar.
Osiguravanjem uvjeta za stambeno zbrinjavanje djelatnika u zdravstvu Grad izravno potiče zadržavanje mladih stručnjaka u Dubrovniku.

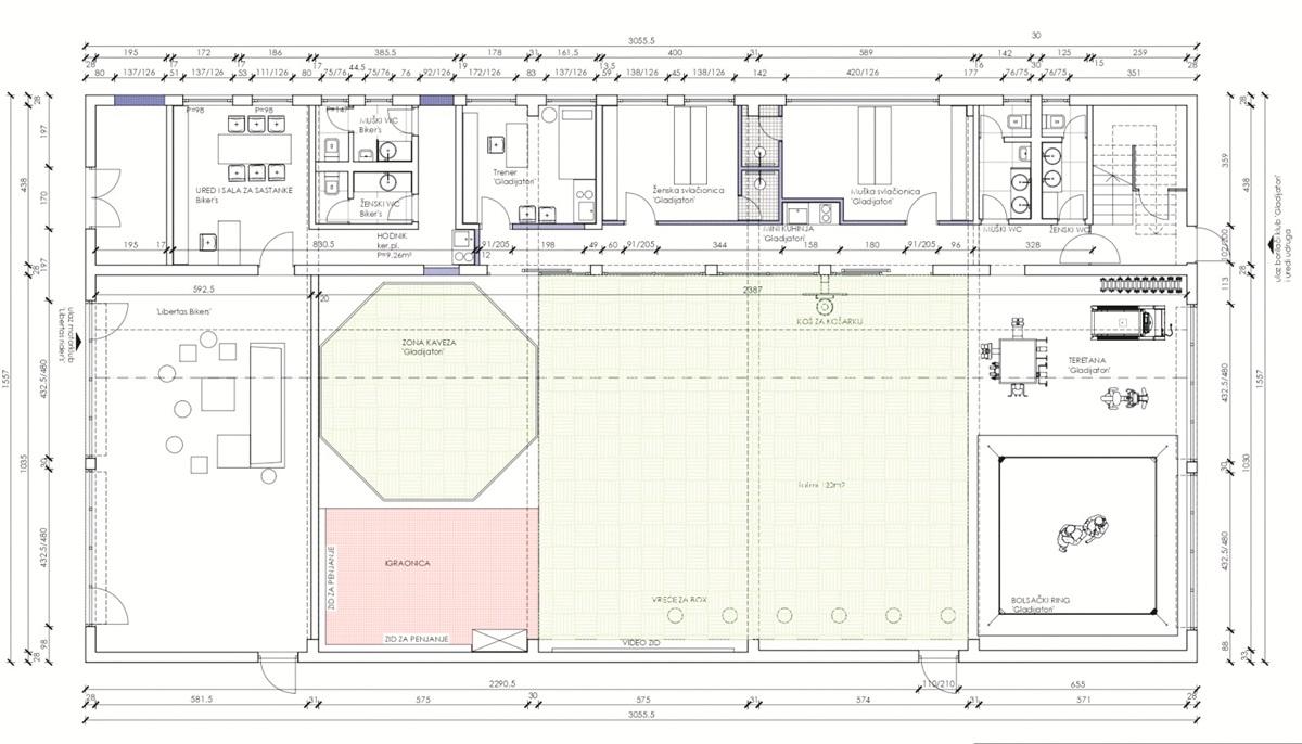
Pokrenuta javna nabava za dvoranu za borilačke sportove
Grad Dubrovnik pokrenuo je postupak javne nabave za izvođenje radova adaptacije prostora bivše ‘Stanice za tehnički prijem vozila’. Projektom se planira adaptirati postojeću građevinu te je preurediti u sportsku dvoranu za borilačke sportove. Sukladno projektu, dvorana će sadržavati prostor za trening, teretanu i prateće prostore (svlačionice i sanitarije) te će se opremiti sportskom opremom. Dio građevine će se urediti za potrebe moto-kluba, a za što će poslužiti dio prostora u prizemlju građevine. Na gornjem katu objekta uredit će se uredi za sportske klubove koji do sada nisu imali svoje klupske prostorije.
Procijenjena vrijednost nabave je 2,4 milijuna kuna, a predivđeni rok početka izvođenja radova je veljača 2021. godine.

Dovršena sanacija asflatnog kolnika
Dovršeni su radovi na sanaciji asflatnog kolnika na sjevernom prometnom traku Ulice branitelja Dubrovnika i to na dijelu od platoa Pile do hotela Hilton. Ukupno je sanirano oko 380 m2 asflatnog zastora, a vrijednost radova koje izvodi ugovorni izvođač na održavanju nerazvrstanih cesta, tvrtka Tehnogradnja d.o.o., je oko 90 tisuća kuna. Ovime se saniraju oštećenja i ulegnuća koja su otežavala promet ovim dijelom ceste te ujedno okončavaju radi na uređenju Pila za ovu godinu. U prethodnom je razdoblju, naime, završena cjelovita obnova kamenog popločenja ovog dijela Pila, kada je sanirano ukupno 1.100 metara četvornih pločnika na potezu od restorana Dubravka na Brsaljama, Ulicom branitelja Dubrovnika sve do skretanja za Gradac.
Sanacijom asflatnog kolnika okončani su radovi na uređenju Pila za ovu godinu.
Aktualnosti Grada Dubrovnika iz tiskanog izdanja DuLista od 30. prosinca 2020.

