Udruga ‘Divlja liga vaterpolo’ uputila je zahtjev nadležnim upravnim odjelima Grada Dubrovnika da se vrhu cijelog puta Vlaha Bukovca hitno ishodi uknjižba prava vlasništva u korist Grada Dubrovnika.
Točnije, riječ je o putu koji prelazi preko dijela č. zgr. 761/1 k. o. Dubrovnik (vlasništvo: župa Sv. Andrije), cjelinom č. zem. 2459 k. o. Dubrovnik (vlasništvo: Republika Hrvatska, pravo služnosti: ‘Jelavić’ d.o.o.) i preko dijela č. zem. 1877/4 k.o. Dubrovnik (vlasništvo: ‘Vila Larus’ d.o.o.).
Iz udruge traže da se za navedeni put ‘ishodi uknjižba prava vlasništva u korist Grada Dubrovnika
(1/1), kao i opis: ‘put’, otprilike onako, kao što je to proljetos polučeno na primjeru Zagrebačke ulice’.
-Naročito je važan onaj dio puta Vlaha Bukovca, koji se nalazi na č. zem. 1877/4 k. o. Dubrovnik, kako se ne bi dogodilo da taj dio puta Vlaha Bukovca, postane dio zgrade budućeg hotela ‘Belvedere’, jer bi
onda pristup kupalištu na ponti Sv. Jakoba, iz puta Vlaha Bukovca, bio onemogućen – smatraju iz udruge Divlja liga vaterpolo.
Podsjećaju kako je Gradsko vijeće Grada Dubrovnika 27. siječnja 2014. godine donijelo Odluku o nerazvrstanim cestama na području grada Dubrovnika.
Svoj su zahtjev potkrijepili s čak 34 priloga.

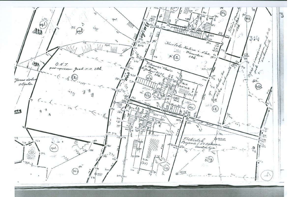
Prilog 1 – Na katastarskom planu iz 1837. godine vidi se put koji ‘zaobilazi’ samostan Sv. Jakova, zatim ‘ide’ prema jugu do ponte Sv. Jakoba te onda ‘skreće’ prema jugoistoku.

Prilog 2 – Put opisan pod ‘Prilog 1’ označen bijelom bojom na ‘Arkod’ pregledniku (današnje stanje)

Prilog 3 – Skica (crveno) dijela puta Vlaha Bukovca, koji je u zemljišnim knjigama upisan kao č. zem. 2446/1 k.o. Dubrovnik, a u vlasništvu (1/1) Grada Dubrovnika.

Prilog 4 – Katastarski plan k.o. Dubrovnik (‘stara izmjera’) na kojemu se vidi da se dio puta Vlaha Bukovca (osim na č. zem. 2446/1), nalazi na č. zgr. 761/1 (vlasništvo: župa Sv. Andrije), na č. zem. 2459 (vlasništvo:
Republika Hrvatska, pravo služnosti: ‘Jelavić’ d.o.o.) i na č. zem. 1877/4 (vlasništvo: ‘Vila Larus’ d.o.o.)

Prilog 5 – Z. k. izvadak za č. zgr. 761/1 k.o. Dubrovnik, za koju u z. ul. 1658, piše ‘crkva Sv. Jakova’ (vlasništvo: župa Sv. Andrije, u cijelosti)

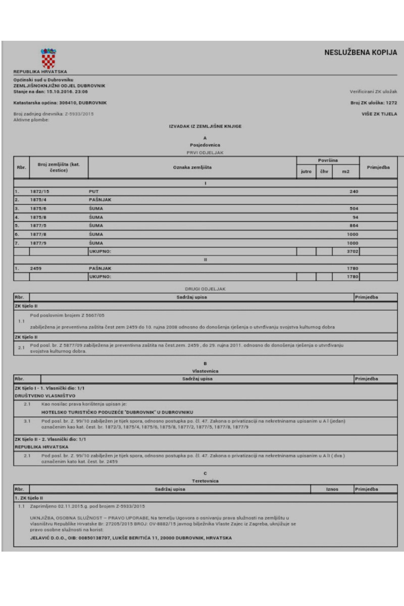
Prilog 6 – Z.k. izvadak za č. zem. 2459 k. o. Dubrovnik, za koju u z. ul. 1272, piše ‘pašnjak’ (vlasništvo: Republika Hrvatska (1/1), pravo služnosti: ‘Jelavić’ d.o.o.)


Prilozi 7 i 8 – Ugovor o osnivanju prava služnosti (na rok od 30 godina) na dijelu č. zem. 2456 k. o. Dubrovnik, za koju je ovlaštenik prava služnosti platio vlasniku ‘pašnjaka’ 252.280,00 kuna. Skenirane stranice ugovora o osnivanju prava služnosti, koji je proveden u postupku Općinskog suda u Dubrovniku, br. Z-5933/2015.

Prilog 9 – Z. k. izvadak za č. zem. 1877/4 k. o. Dubrovnik, za koju u z. ul. 2954 piše ‘pašnjak’ (vlasništvo: ‘Vila Larus’ d.o.o. u cijelosti)

Prilog 10 – Obuhvat (nedavno ukinutog) DPU ‘Belvedere’, na kojem je sa ‘K7’ označen onaj dio puta Vlaha Bukovca na č. zem. 1877/4 k. o. Dubrovnik, koji mora ostati ‘put’.

Prilog 11 – Dio GUP Grada Dubrovnika, na kojem su sa ’45’, ’47’, ’49’, ’51’ označene 4 posljednje (neparne) kućne adrese na putu Vlaha Bukovca, a sa ’16’ je označena posljednja kućna adresa na putu Vlaha Bukovca. Posljednja adresa na tom putu je, dakle: Vlaha Bukovca 16 i pripada zgradi starog hotela ‘Belvedere’ (kasnija taverna novog hotela ‘Belvedere’).

Prilog 12 – Načelni obuhvat budućeg DPU ‘Belvedere’ kojim uključuje i onaj dio puta Vlaha Bukovca, koji je izostavljen obuhvatom (nedavno ukinutog) DPU ‘Belvedere’ (objašnjeno pod ‘Prilog 10’).

Prilog 13 – Tabla na međi č. zem. 2456 k. o. Dubrovnik i č. zem. 1877/4 k. o. Dubrovnik, kojom ‘Vila Larus’ d.o.o. upozorava o ‘ulazu na vlastitu odgovornost’, jer da se radi o ‘privatnom posjedu’.

Prilog 14 – Izgled krajnjeg (jugoistočnog) dijela puta Vlaha Bukovca, prije izgradnje novog hotela ‘Belvedere’

Prilog 15 – Graditelji novog hotela ‘Belvedere’ su poštovali krajnji (jugoistočni) dio puta Vlaha Bukovca i napravili su ‘volat’.

Prilog 16 – Idejni plan (tlocrt) spajanja puta Vlaha Bukovca i puta Frana Supila.

Prilog 17 – Na katastarskom planu k. o. Dubrovnik (‘nove izmjere’) je sa k. č. br. 5125 označen ‘Put CCIX’

Prilog 18 – U posjedovnom listu 4314, upisano je da k. č. br. 5125 k. o. Dubrovnik jest: put Vlaha Bukovca.

Prilog 19 – Geodetska mjerna skica iz 1955. (mjerilo: 1:500) na temelju koje je izrađena NOVA IZMJERA (stavljena u opticaj 1963.). Skiciran je dio puta Vlaha Bukovca koji ‘pokriva’ među č. zem. 2456 k. o. Dubrovnik i č. zem. 1877/4 k. o. Dubrovnik.

Prilog 20 – Geodetska mjerna skica iz 1955. (mjerilo: 1:500) na temelju koje je izrađena NOVA IZMJERA (stavljena u opticaj 1963.). Skiciran je dio puta Vlaha Bukovca istočno od ‘dependance’ starog hotela ‘Belvedere’. Precizno su ucrtane nekadašnje skale, kojima se od Vlaha Bukovca dolazilo do ‘dependance’, zatim od ‘dependance’ do starog ‘Belvedere’ te od starog ‘Belvedere’ do obale. Od tih nekadašnjih skala, očuvano je 6 skalina na obali.

Prilog 21 – Stari hotel ‘Belvedere’. Vidi se dio nekadašnjih skala od starog ‘Belvedere’ do mora. Od tih nekadašnjih skala, očuvano je 6 skalina na obali.


Prilozi 22 i 23 – Vide se 6 očuvanih skalina na obali od nekadašnjih skala, o kojima je pisano pod ‘Prilog 20’ i pod ‘Prilog 21’. U desnom gornjem kutu fotografije je zgrada očuvane ‘dependance’ od starog ‘Belvedere’. Skale, koje se vide na fotografiji, nisu one nekadašnje, o kojima je pisano pod ‘Prilog 20’.

Prilog 24 – Skica preuzeta iz starog PP Grada Dubrovnika, kojim je bilo predviđeno produljenje postojećeg mula ‘Belvedere’, a ne uklanjanje tog mula iz prostora (uz gradnju nova dva mula).

Prilog 25 – Geodetska mjerna skica iz 1955. (mjerilo: 1:500) na temelju koje je izrađena NOVA IZMJERA (stavljena u opticaj 1963.). Skiciran je dio puta Vlaha Bukovca kod samostana Sv. Jakova na Višnjici.

Prilog 26 – Geodetska mjerna skica iz 1955. (mjerilo: 1:500) na temelju koje je izrađena NOVA IZMJERA (stavljena u opticaj 1963.). Skiciran je dio puta Vlaha Bukovca iznad skala, kojima se dolazi do plaže Sv. Jakov. Muo (‘gat’) na skici postoji, ali je zatrpan pijeskom od plaže, pa se ne vidi.

Prilog 27 – Izgled mula na plaži Sv. Jakov, prije nego što ga je prekrio pijesak.

Prilog 28 – Put Vlaha Bukovca na ponti Sv. Jakoba, prije izgradnje novog ‘Belvedere’

Prilog 29 – Put Vlaha Bukovca na ponti Sv. Jakoba, nakon izgradnje novog ‘Belvedere’

Prilog 30 – Volat od novog ‘Belvedere’ iznad puta Vlaha Bukovca

Prilog 31 – Jugoistočni kraj puta Vlaha Bukovca. Parkirani motor na fotografiji od 01.10.2016., dokaz je kako se čitav dio puta Vlaha Bukovca, koji se nalazi na č. zem. 1877/4 k. o. Dubrovnik, koristi za cestovni promet.

Prilog 32 – Zaključak stručnog rada ‘Pravni status prometnica i upis u zemljišne knjige’ suca Vrhovnog suda RH Damira Kontreca


Prilozi 33 i 34 – Dva snimka s youtube videa s dijela puta Vlaha Bukovca kod amfiteatra od Belvedere snimljen 27.07.2014. Dokaz da je put Vlaha Bukovca, u dijelu na č.zem. 1877/4 k.o. Dubrovnik, bila prometnica i za automobile, sve dok ‘Vila Larus’ d.o.o. nije postavila stupiće kod portuna. Sada taj dio puta Vlaha Bukovca, premda prometan samo za motore i bicikle, ipak potpada pod ‘nerazvrstane ceste’, pa je ‘ex lege’ u vlasništvu Grada Dubrovnika.
[youtube_video id=”RUtGqtylLYM”]
