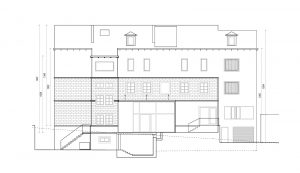
Uskoro gradnja doma umirovljenika u Gružu
Hotel Gruž objavio je otvoreno nadmetanje za nabavu radova na projektu ‘Rekonstrukcija (dogradnja i nadogradnja) Hotela Gruž u dom za starije i nemoćne osobe tipa hotel’. Dom će raspolagati s 48 ležajeva u 32 smještajne jedinice, i to 16 jednokrevetnih soba, 13 dvokrevetnih i tri apartmana. U suterenu su predviđene i tri jednokrevetne sobe za osobe s invaliditetom. Prenamjenom zgrade dobit će se koristan prostor od 1.300 m² podijeljen na suteren, prizemlje, prvi i drugi kat te potkrovlje, uz racionalizaciju troškova i optimalnu kvalitetu smještaja. U objekt će se ugraditi dizalo, sve sobe imat će direktan pristup kupaonicama, a gotovo trećina njih će imati lođe. Za dodatnu udobnost korisnika, predviđen je i prostrani dnevni boravak s kafićem te velika terasa. Izgradnjom doma umirovljenika u Gružu zadovoljit će se dio potrebe smještaja dubrovačkih umirovljenika. Uz novi dom kod Opće bolnice za 200 stalnih i 70 dnevnih korisnika usluga, čija je gradnja u planu za 2021. godinu, riječ je o prioritetu ove gradske uprave u segmentu društvene infrastrukture Grada Dubrovnika. Rok trajanja rekonstrukcije je 12 mjeseci od dana uvođenja izvođača u posao, a ukupna procijenjena vrijednost nabave iznosi 17 milijuna kuna.
Ponude za izvođenje radova moraju biti zaprimljene najkasnije do 16. ožujka 2020. zaključno u 12 sati na adresi Hotela Gruž, bez obzira na način dostave, a dokumentacija je dostupna na internetskoj stranici dioničkog društva Hotel Gruž.

Sanira se pločnik na Pilama
Počela je rekonstrukcija oko 1.100 metara četvornih dotrajalog pločnika na Pilama, a sanacija će obuhvatiti područje od restorana Dubravka, Ulicom branitelja Dubrovnika sve do skretanja za Gradac. Kamene ploče na ovom području zbog opterećenja i dotrajalosti često pucaju i dolazi do ulegnuća na pojedinim dijelovima te time predstavljaju moguću opasnost za prolaznike, a izgledom su neprimjerene za ‘’recepciju’’ Grada. Na oko 330 metara dužine ovog zahvata radovi će se izvodit u sekcijama kako bi se omogućio prolazak pješacima, a počinje se s Pila u nastojanju da se taj dio pločnika s najvećim brojem pješaka vrati u funkciju do sezone, a onda se radovi nastavljali dalje duž Ulice branitelja Dubrovnika. Ujedno, sukladno uputama konzervatora da se sačuva što više starog kamena, svaki je kamen potrebno pažljivo izvaditi, svakoga ručno obraditi kako se ne bi klizao, kvalitetno pripremiti podlogu da ne bi dolazilo do ulegnuća te na koncu vratiti pripremljeni kamen. Radovi su većeg opsega i odvijaju se u otežanim uvjetima pojačanog prometa osoba i vozila te je njihovo predviđeno trajanje šest mjeseci, a vrijednost sanacije iznosi 1,5 milijuna kuna.

Milijun kuna za dubrovačke tradicijske obrte
Grad Dubrovnik raspisao je natječaj za dodjelu do 42 subvencije za tradicijske dubrovačke obrte u 2020., u mjesečnom neto iznosu od 2.000 kuna. Program subvencija nadograđen je 2018. godine od kada se ova potpora isplaćuje tijekom cijele godine umjesto šestomjesečnog razdoblja, kako je bila ranija praksa. Prošle godine povećan je broj korisnika subvencija sa 30 na 42 korisnika, a za ovu namjenu u Proračunu za 2020. godinu osigurano je 1.011.000,00 kuna. Krajnji rok za prijave je 23. ožujka, a informacije o uvjetima natječaja, kriterijima i potrebnoj dokumentaciji i načinu prijave sadržane su u tekstu natječaja objavljenom na internetskoj stranici Grada Dubrovnika.
Aktualnosti Grada Dubrovnika iz tiskanog izdanja DuLista od 11. ožujka 2020.


